estatenoble.ru

агентство недвижимости

12-я линия Васильевского острова

Клубный дом Amo

от 39.66 м2

площадь

Монолит М400

материал стен

от 17,8 млн.

стоимость

Архитектурный облик здания вдохновлён образами петербургского модерна и французского ар-деко. Жилые секции образуют парадный двор-курдонёр, ограниченный с трёх сторон и раскрывающийся в сторону 12 линии. Во дворе выполнено благоустройство и ландшафтный дизайн по авторскому дизайн-проекту.

На подземном этаже разместятся кладовые и подземный паркинг с доступом на лифте из каждой секции. Для жильцов и гостей организовано лобби с зоной ожидания и стойкой консьержа. В состав жилого комплекса входит памятник архитектуры – деревянный особняк Бремме – Он будет реконструирован и приспособлен под коммерческие функции.

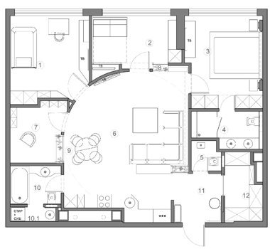
ТИПОВЫЕ ПЛАНИРОВКИ КВАРТИР

Дуплекс 140 м2

Площадь от 140 м2

Стоимость от 15.000.000 руб

Пожалуйста укажите телефон
Дом 160 м²

Площадь от 41.68 м2

Стоимость от 20.106.500 руб

Пожалуйста укажите телефон
Дуплекс 90 м²

Площадь от 52.13 м2

Стоимость от 29.338.900 руб

Пожалуйста укажите телефон
Таунхаус

Площадь от 74.22 м2

Стоимость от 40.756.500 руб

Пожалуйста укажите телефон

Клубный дом Amo это

Облик комплекса создан мастерской Liphart Architects и унаследовал благородство петербургской традиции зодчества. Акцент на деталях, продуманный декор, панорамные окна с утонченными балконными решетками и мансардный этаж с террасами делают его неповторимым.

Искусная резьба по штукатурке, уложенной в несколько слоев, создает эффектный, объемный декор. Узоры оживают благодаря итальянской технике сграффито — любимому приему архитекторов эпохи Ренессанса и их последователей середины XX века.

Зигзагообразная линия стен раскрывает солнечным лучам южную часть дома и формирует ступенчатую, неординарную, авторскую форму дома. Каждый фрагмент АМО имеет собственное лицо, но подчиняется общему ритму и замыслу творца. Единую композицию создают силуэты домов с узкими фасадами, карнизами, эркерами и окнами.

Центральная входная группа включает лобби с зоной ожидания и стойкой консьержа для жильцов и гостей в холле первого этажа секций А и В, общей площадью более 85 м2


ОНЛАЙН КОНСУЛЬТАЦИЯ

получите больше информации о проекте
и задайте свои вопросы

НЕ НАШЛИ ПОДХОДЯЩЕЕ?

Укажите параметры недвижимости и мы подберем варианты в течение дня бесплатно

Пожалуйста укажите телефон
Написать в мессенджер